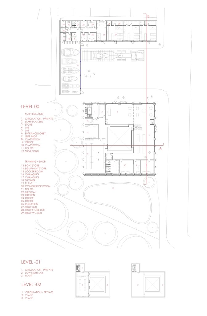
MSA Stage 4
Bourdon Building, 40 students
This programme is ARB/RIBA Part 2 Accredited. The programme is designed to provide the necessary educational framework for students who intend to enter the architectural profession, and confers exemption from Part 2 of the Examination in Architecture ARB/RIBA. It offers an intensive training in the forces acting on building, and the specific skills of being an architect. Project based it centres on contemporary issues of urban building, the work ranging from live projects and sponsored research to competitions and theoretical studies.
This year’s Stage 4 students have focused their project work on the city of Glasgow. Their work looks at different parts of the city, thinking about communities in the city and their needs. The projects range from housing to community projects and spaces, and the social and environmental needs of people in communities across Glasgow.


from The Neighbourhood Assembly of Pollokshields

from The Commoning Manifesto

from The Neighbourhood Assembly of Pollokshields

from MacMag 49

from The Commoning Manifesto


from Urban Building

from Urban Building

from Urban Housing

from Urban Building

from Urban Housing


from RE-HUB

from RE-HUB

from Urban Housing

from RE-HUB

from RE-HUB


from Summit Wellness Centre

from Urban Housing

from Urban Housing

from Summit Wellness Centre

from Summit Wellness Centre


from Splash – A Diving Centre in Thornwood

from A Patchwork of Thornwood

from Splash – A Diving Centre in Thornwood

from Splash – A Diving Centre in Thornwood

from A Patchwork of Thornwood


from Urban Housing – Thornwood Quadrant Development

from Urban Housing – Thornwood Quadrant Development

from Urban Building – Thornwood Making

from Urban Housing – Thornwood Quadrant Development

from Urban Housing – Thornwood Quadrant Development


from Urban Building: Culinary Diplomacy – Pollokshields Food Market and Nutrition Centre

from Urban Housing: Room For All

from Urban Building: Culinary Diplomacy – Pollokshields Food Market and Nutrition Centre

from Urban Housing: Room For All

from Urban Building: Culinary Diplomacy – Pollokshields Food Market and Nutrition Centre


from Living in Agreement -Urban Developments

from Living in Agreement -Urban Developments

from Living in Agreement -Urban Developments

from Living in Agreement -Urban Developments

from Living in Agreement -Urban Developments


from Crathie Court House For Women (& Wee Ones)

from Crathie Court Healthcare Hub For Women (& Wee Ones)

from Crathie Court Healthcare Hub For Women (& Wee Ones)

from Crathie Court Healthcare Hub For Women (& Wee Ones)

from Crathie Court House For Women (& Wee Ones)


from Pollokshields East

from Pollokshields East

from Knowehead Terrace

from HOMECOMING

from Knowehead Terrace


from Urban Building – Bathhouse & Data Centre

from Urban Building – Bathhouse & Data Centre

from Urban Housing – Multigenerational Housing

from Urban Housing – Multigenerational Housing

from Urban Building – Bathhouse & Data Centre


from Urban Housing In Thornwood

from Urban Housing In Thornwood

from Thornwood Wellness Center


from Urban Building: The Children of Thornwood Library

from Urban Housing: The New Tenement

from Urban Building: The Children of Thornwood Library

from Urban Building: The Children of Thornwood Library

from Urban Housing: The New Tenement


from The Prattle Playhouse

from Easy Living

from Easy Living

from Easy Living

from Easy Living



from Thornwood Urban Project

from Thornwood Urban Project

from Thornwood Urban Project

from Thornwood Urban Project

from Thornwood Urban Project


from Dennistoun Wellness Lab.

from Dennistoun Wellness Lab.

from Dennistoun Wellness Lab.

from Dennistoun Wellness Lab.

from Dennistoun Wellness Lab.


from GreenHub Oasis

from Urban Housing

from GreenHub Oasis

from Urban Housing

from GreenHub Oasis


from The Water Resource Centre

from The Water Resource Centre

from The Water Resource Centre

from The Water Resource Centre

from The Water Resource Centre


from 4.3: Urban Building – The Gaitherin’ Place

from 4.3: Urban Building – The Gaitherin’ Place

from 4.3: Urban Building – The Gaitherin’ Place

from 4.3: Urban Building – The Gaitherin’ Place

from 4.2: Urban Housing – Informed by my experience of living

from Urban Building: Fresh & Future

from Urban Housing: Agreement One To Everyone

from Urban Housing: Agreement One To Everyone

from Urban Building: Fresh & Future

from Urban Housing: Agreement One To Everyone


from Storytelling Centre

from Storytelling Centre

from Knowehead House for Refugees

from Storytelling Centre


from The Expressive Corner


from Half Cut: A Centre for Making and Sharing

from Half Cut: A Centre for Making and Sharing

from Half Cut: A Centre for Making and Sharing

from Half Cut: A Centre for Making and Sharing

from Half Cut: A Centre for Making and Sharing


from Urban Building – ‘More Than Plastic’: Material Recycling Centre

from Urban Housing: How to build sense of community?

from Urban Housing: How to build sense of community?

from Urban Building – ‘More Than Plastic’: Material Recycling Centre

from Urban Building – ‘More Than Plastic’: Material Recycling Centre


from Architectural Technology – Precedent Study

from Dissertation

from Phase 3 – Urban Building

from Phase 3 – Urban Building

from Phase 3 – Urban Building


from Urban Building – It Started With a Story

from Urban Building – It Started With a Story

from Urban Building – It Started With a Story

from Urban Building – It Started With a Story

from Urban Building – It Started With a Story


from Wellpark Community Centre & Housing

from Wellpark Community Centre & Housing

from Wellpark Community Centre & Housing

from Wellpark Community Centre & Housing

from Wellpark Community Centre & Housing


from Urban Building – Ode to Movement

from Urban Housing – Living in Agreement with Nature

from Urban Building – Ode to Movement

from Urban Housing – Living in Agreement with Nature

from Urban Building – Ode to Movement


from Glasgow Waste-to-Energy Recycling Center

from Glasgow Waste-to-Energy Recycling Center

from Urban Housing: Thornwood Quadrant

from Urban Housing: Thornwood Quadrant

from Urban Housing: Thornwood Quadrant


from THE MAKING

from MacMag 49

from MacMag 49

from THORNWOOD QUADRANT

from THE MAKING


from ‘After the Break’

from ‘A Familiar Co-op’

from ‘A Familiar Co-op’

from ‘After the Break’

from ‘A Familiar Co-op’


from Satellite Library for the Mitchell Collections

from Satellite Library for the Mitchell Collections

from Satellite Library for the Mitchell Collections

from Satellite Library for the Mitchell Collections

from Satellite Library for the Mitchell Collections


from A Centre for Citizens: Children’s Rights & Youth Activism

from A Centre for Citizens: Children’s Rights & Youth Activism

from A Centre for Citizens: Children’s Rights & Youth Activism

from A Centre for Citizens: Children’s Rights & Youth Activism

from A Centre for Citizens: Children’s Rights & Youth Activism


from Green Bonds: Cultivating Connections in Shared Green Spaces

from Green Bonds: Cultivating Connections in Shared Green Spaces

from Contemporary Rituals Centre

from Contemporary Rituals Centre

from Contemporary Rituals Centre


from Crathie Court

from Industrial Amnesia

from Industrial Amnesia

from Industrial Amnesia

from Industrial Amnesia


from Crathie Court & Crathie Drive

from The Music Box

from Crathie Court & Crathie Drive

from Crathie Court & Crathie Drive

from The Music Box


from Duke Street Urban Housing

from Cultural Exchange Urban Building

from Duke Street Urban Housing

from Duke Street Urban Housing

from Duke Street Urban Housing


from A Localised Sexual & Maternal Health Sanctuary for Women of Thornwood

from Women’s Only Co-operative Housing

from A Localised Sexual & Maternal Health Sanctuary for Women of Thornwood

from Women’s Only Co-operative Housing

from Women’s Only Co-operative Housing


from Pollokshields Community Art Centre

from Pollokshields Community Art Centre

from Pollokshields Community Art Centre

from Pollokshields Community Art Centre

from Pollokshields Community Art Centre